Javornická palírna
Na místě původní hospodářské usedlosti z konce 19. století, v obci Javornice v jižních Čechách, vznikl nový, částečně rekonstruovaný areál Javornické palírny. Jeho majitelé zde díky sousednímu statku, který již delší dobu vlastní, vytvořili hospodářství s veškerým potřebným zázemím.
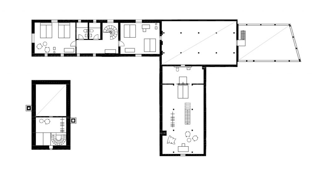
Nejedná se pouze o novostavbu malého ovocného lihovaru, ale také o další rekonstruované a dostavované budovy bývalého hostince s tanečním sálem, chlévy a stodolou. Nově je v objektech umístěn obchod, sklad ovoce, chlazená kvasírna, celní sklepní sklad, dřevník, garáž. Dále je zde ubytování pro členy rodiny majitele a jejich případné hosty. Součástí Javornické palírny je také rozsáhlý ovocný sad a zahrada. Usedlost stojí pod zříceninou Helfenburk, v malebné kopcovité krajině mezi městy Bavorov a Vlachovo Březí v nadmořské výšce 480 m.n.m. Okolí tvoří převážně lesy, pastviny a hospodářská pole.
Návrh rekonstrukce areálu vycházel především z původního členění a umístění budov, které však byly ve velmi špatném technickém stavu. Proto došlo ke stržení veškerých novodobých přístavků a dostaveb, včetně střech a krovů, byly zachovány pouze základní hmoty a některé nosné stěny hlavních budov. K nim pak byly dostavěny nové objekty kvasírny s ubytováním v podkroví a v místě spadlé stodoly dřevník s garáží. Zcela novým a samostatně stojícím objektem je palírna, která je umístěna tak, že s původními budovami vytváří částečně uzavřený a chráněný dvůr.
Snahou architektů bylo zachovat maximum z původních architektonických prvků budov a tam, kde to již nebylo možné je nahradit podobnými charakteristickými detaily přenesenými z jiných jihočeských staveb. U novostaveb volili materiály nové, současné, avšak s respektem k původní stavbě. Takže například vzniklo řešení, kdy všechny původní střechy mají červenou pálenou krytinu, tzv. „bobrovku“, naopak všechny novostavby mají stejnou krytinu, ale černé barvy.
Návrh vzhledu budov, výraz fasád i tvar střech, byl výrazně ovlivněn bezprostředním okolím a tak bylo použito převážně tradiční řešení jak tvarové, tak materiálové. Většina fasád má klasickou vápennou omítku, části budov s dřevěnou nosnou konstrukcí jsou obloženy dřevěnými prkny, pouze pro palírnu samotnou bylo zvoleno pohledové zdivo z plných cihel natřené bílou barvou jako akcent významu budovy.
Plochy dvora, zápraží a ostatní prostory kolem budov jsou vydlážděny z přírodních kamenů, převážně žuly.
Z dálky, při příjezdu do Javornice, tak není na první pohled patrné, že se jedná o novostavbu, při bližším a podrobnějším prozkoumání je to však zcela zřejmé. Palírna se tak stala přirozenou součástí obce.
Javornická palírna
Místo: Javornice 27, 384 22 Dub
Autor: ADR – Petr Kolář, Aleš Lapka
Spoluautor: Jana Zoubková, Markéta Kavalírová
Investor: David Voverka / david.voverka@messenger.cz
Užitná plocha: 623,5 m2
Zastavěná plocha: 483,5 m2
Projekt: 2013
Realizace: 2016
www.adr.cz
