Bytový dům Nuselská
Novostavba bytového domu je situována v proluce starší blokové zástavby. Cílem architektů bylo nejen zacelit dříve neúplnou uliční frontu, ale zároveň vhodně reagovat na rozdílnou prostorovou konfiguraci navazujících objektů za použití terasovitě členěného dvorního průčelí.
Popis projektu:
Okolí
Bytový dům Nuselská se nachází v Praze 4 Michli, v lokalitě, kde se stýká torzo blokové zástavby z počátku 20. století se zbytky starší rostlé zástavby a kam v posledních letech směřují developerské zásahy v podobě nepříliš městotvorné výstavby soliterních bytových domů.
Pro podobu městské struktury zde byla určující morfologie terénu, kdy na dně údolí potoka Botiče, sevřeném mezi Pankrácí a Tyršovým vrchem, nebylo možné plně rozvinout tradiční blokovou zástavbu. Výsledkem je nepřehledné, chaotické materiální prostředí, kde je negativní dojem dále umocněn periferním charakterem a nízkým socioekonomických statusem širšího okolí. Kostru území tvoří Nuselská ulice, výrazná komunikační a kompoziční osa čtvrti.
Hmota
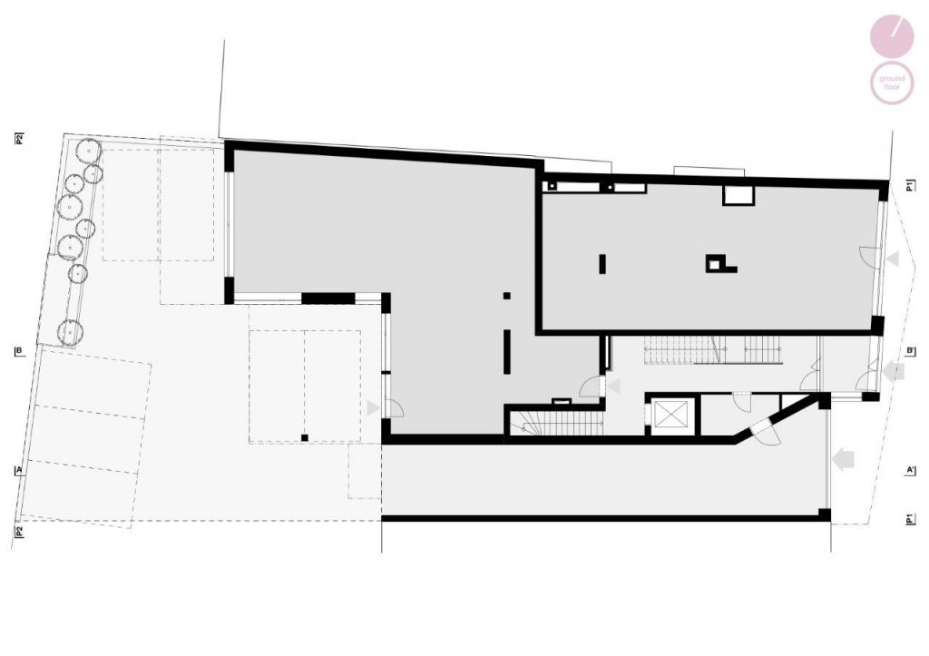
Nově postavený bytový dům je situován v proluce na Nuselské ulici. Pro jeho podobu byla velkou měrou určující specifická prostorová konfigurace okolních objektů. Oba sousední domy od sebe dělí více než sto let a jsou značně nesourodé. Zatímco v nedávné době realizovaný bytový dům na jižní straně proluky má trakt hluboký, secesní objekt Hotelu Michle na severní straně má trakt mělký, ale doplněný jedno a dvoupodlažními přístavbami ve dvoře. Oba sousední objekty mají dále rozdílnou podlažnost i výšku.
Novostavba bytového domu o sedmi nadzemních a jednom podzemním podlaží tvoří se sousedním bytovým domem, který dříve zrealizoval stejný investor, jakési dvojče a sdílí s ním vjezd do podzemního parkingu a průjezd do dvora. S výjimkou parteru, ve kterém jsou situovány dvě komerční jednotky, jsou v objektu výhradně byty. Na uliční straně jsou navrženy malé jedno a dvoupokojové byty, na dvorní straně pak větší, až po čtyřpokojové v nejvyšších podlažích.
Uliční průčelí plynule navazuje na sousední objekty a zaceluje dříve neúplnou uliční frontu. V přízemí je uliční čára zazubená, aby bylo možné vytvořit na chodníku vyčkávací stání před vjezdem do dvora. Ve druhém až šestém nadzemním podlaží je uliční průčelí půdorysně zalomené a vykonzolované nad chodník. Poslední podlaží je ustoupené. Protože je objekt situován v místě, kde se Nuselská ulice okolo Tyršova vrchu zatáčí, umožňuje vyložení nadzemních podlaží zajímavé průhledy severním i jižním směrem v ose této třídy. Tento efekt je dále umocněn situováním prosklených lodžií do půdorysného zlomu uliční fasády.
Dvorní průčelí, orientované směrem k potoku Botiči, je řešeno jako terasovité. Zatímco na jižní straně má objekt stejnou hloubku traktu jako navazující bytový dům, na severní straně reaguje ve spodních podlažích na značnou hloubku zastavění sousední parcely přístavbami a naopak menší hloubku traktu vlastního hotelu v horních podlažích.
Forma
Forma bytového domu je jednoduchá a čistá; jedině taková se autorům jevila jako vhodná v reakci na okolní chaotický kontext. Nosná konstrukce je železobetonová monolitická s výjimkou posledních dvou podlaží, která jsou vyzděna z keramických tvárnic. Fasády objektu, řešené kontaktním zateplovacím systémem, jsou omítnuty bílými omítkami a členěny rozměrnými okny v černých rámech. Pro uliční průčelí byla zvolena nákladnější broušená fasáda. Zábradlí v oknech, lodžiích, balkonech i na terasách jsou skleněná bezrámová. Uliční parter je obložen velkoformátovými tabulemi černého smaltovaného skla.
Vnější barevnost je redukována na černou a bílou s výjimkou dřevěných podlah na terasách, balkonech a v lodžiích, které jsou ponechány v přírodní barvě. V kontrastu k takto potlačené barevnosti jsou vstupní prostory objektu akcentovány zlatým štukem na jedné z bočních stěn, který provází návštěvníky od vstupu do hloubky dispozice ke schodišti a výtahu. Zlatý akcent je prosklenými výkladci jasně viditelný z uličního parteru.
Vnitřní barevnost je rovněž střízlivá. Malby stěn ve společných prostorech jsou provedeny ve světle šedé barvě, podobně jako keramická dlažba na podlahách a schodišti nebo ocelové zárubně dveří a dveřní křídla do technických místností. Ocelová zábradlí a madla na schodišti jsou černá, stejně jako HPL fólie na truhlářských kapotážích rozvaděčů na hlavních podestách schodišť, na kterých je zároveň integrována informační grafika označující čísla podlaží. Také uvnitř objektu se objevují přírodní dřevěné povrchy: dubové dýhy na vchodových dveřích do bytů a v bytech nebo dubové plovoucí podlahy uvnitř bytů. Výrazným prvkem ve vstupní hale je jednoramenné ocelové schodiště s černými teracovými stupni a skleněným zábradlím.
Technické informace:
- plocha pozemku: 671 m2
- zastavěná plocha: 619 m2
- hrubá podlažní plocha: 2 774 m2
- obestavěný prostor: 9 076 m3
- počet podlaží: 7 nadzemních, 1 podzemní
- počet bytů: 27
- počet komerčních jednotek: 2
Výrobci, kteří na stavbu dodávali své materiály:
- Wienerberger - keramické tvárnice a příčkovky Porotherm
- Sto - zateplovací systém s broušenou omítkou na uliční fasádě StoTherm Mineral
- Sto - strukturovaná omítka s metalickým nátěrem ve vstupní hale Stolit Milano
- GLASSLINE - systém strukturálního celoskleněného zábradlí na balkónech BALARDO
- VEKRA - výplně otvorů ve fasádě
- VEKRA - dveře v bytech
- LIGMAN - osvětlovací tělesa na terasách, balkónech a lodžiích
- HORMEN - osvětlovací tělesa ve společných prostorech
- IMOLA - keramická dlažba ve společných prostorech
- POLYREY - HPL fólie na kapotážích rozvaděčů s čísly podlaží
- PAR-KY - lamelové podlahy v bytech
- Kancelář: ABM architekti s.r.o. www.abmarch.cz
- Autoři: Ing. arch. Petr Bouřil, Ing. arch. Jan Mužík, Ing. arch. Tomáš Vlasák, Ing. arch. Václav Petrus
- Stavební část projektu: GREBNER - projektová a inženýrská kancelář, spol. s r.o
- Adresa: Nuselská 1564/126 , 140 00 Praha 4 – Michle
- Projekt: 2011 - 2016
- Realizace: 2016
- Investor: PETO Real a. s.
- Dodavatel: SWIETELSKY stavební s.r.o.
Otázky pro autory
Velká plocha oken orientovaných do ulice skýtá u bytů někdy méně soukromí. Jsou u domu nějaké společné předokenní nebo vnitřní stínicí prvky, které by jej zvyšovaly?
Okna na uliční fasádě mají orientaci na SV, a tak žádné exteriérové stínění ani přípravu pro něj nemají. Pro zajištění soukromí používají uživatelé vnitřní stínění, zpravidla textilní závěsy.
Prosklené části bytů ve dvorním traktu jsou orientována jihozápadně. Jak je zde řešeno případné přehřívání v letních měsících?
Všechna okna na dvorní fasádě měla provedenou přípravu pro instalaci exteriérových žaluzií (příprava elektro pro montáž žaluzií do okenní niky před výplň otvoru) a nadokenních markýz (příprava elektro a podpůrná ocelová konstrukce skrytá v zateplovacím systému pro instalaci markýz nad okenním otvorem). Většina uživatelů si během dvou let od realizace žaluzie instalovala, někteří i markýzy.
Pracoval Váš návrh s odhlučněním bytů v ulici s tramvajovým provozem a pokud ano, jak?
Ve věci zatížení hlukem z dopravy předcházela realizaci složitá jednání s Hygienickou stanicí na Praze 4, která nakonec vyústila v realizované řešení se standardními dřevěnými okny s integrovanými větracími štěrbinami. Hygiena původně požadovala větrání bytů při dvorní fasádě přes uzavřené lodžie.
Souhlasil investor i se sympatickými černými rámy oken, nebo jste ho museli přesvědčovat?
Investor byl jednoduchému řešení s potlačenou barevností nakloněn a celkově byl velice vstřícný. Především díky jeho přístupu bylo možné navrhnout dům s čistou a jednoduchou formou. Bílá a černá barevnost pro investora nepředstavovala problém a to nejen v případě okenních rámů, ale ani u velkoplošného obkladu uličního parteru smaltovaným černým sklem nebo u truhlářské kapotáže rozvaděčů na schodišti opatřené černou HPL fólií. Investor nám důvěřoval, přemlouvat jsme ho nemuseli.
Kolik bytů a kolik garážových stání je k dispozici?
V objektu je celkem 27 bytů a 2 nebytové jednotky. Parkování je možné buď v podzemní hromadné garáži nebo ve dvoře. Obě parkovací plochy pak řešený objekt sdílí se sousedním bytovým domem, který dříve realizoval stejný investor. Navrženo je 33 parkovacích stání.
