Myslete na venkovní žaluzie již v projektu
Venkovní žaluzie jsou vysoce účinnou stínicí technikou. Jejich obliba je na vzestupu a stávají se neodmyslitelným doplňkem moderních staveb. Používají se tam, kde chceme dosáhnout co největší energetické úspornosti budov.
Nespornou výhodou venkovních žaluzií je možnost naklápění lamel, čímž dochází jak k regulaci osvětlení interiéru, tak i množství pouštěného tepla dovnitř budovy. V nabídce firmy CLIMAX jsou venkovní žaluzie typu C-80/C-80 CC, Z-90/Z-70, F-80 a EXT-50. Lišíse od sebe zejména tvarem lamel, jejich šířkou, provedením žaluzie (podomítkové provedení, předokenní provedení, typem fixace bočního vedení apod.) a typem ovládání.
Vzhledem k tomu, že jsou venkovní žaluzie součástí fasády, je velmi důležité na ně pamatovat již ve fázi projektu. Instalace venkovních žaluzií nabízí několik variant montáže, které je možné rozdělit do dvou základních skupin, a to podomítkové provedení a předokenní provedení. Trendem poslední doby je rostoucí obliba zejména pod omítkových boxů. Důvodem jsou čím dál náročnější požadavky architektů a projektantů z hlediska tepelných mostů a kvality použitých materiálů. Je jedno, jestli se jedná o průmyslové objekty, rodinné domy nebo pasivní domy či ostatní stavby.
Podomítková instalace venkovních žaluzií
V případě, že se rozhodnete pro pod omítkové provedení, máte na výběr hned několik možností. Tento způsob instalace Vám zajistí, že po vytažení žaluzie bude nábal lamel (svazek stažených lamel) uložen do prostoru nad okenním otvorem. Pohledově tedy nebude z venkovní strany domu žaluzie patrná, viditelné zůstanou pouze boční vodící lišty nebo lanka.
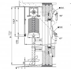
Do předem připraveného stavebního prostoru nad oknem pro instalaci žaluzie se používají speciální konzoly (obr. 1), nebo podomítkové schránky v různém provedení (např. s izolací atd. – obr. 2), nebo roletové boxy (obr. 3). Podomítková instalace je vhodná i pro venkovní žaluzie v samonosném provedení (zde je horní nosič venkovní žaluzie spojen s vodícími lištami, a pouze přes vodící lišty je žaluzie následně kotvena na rám okna nebo do ostění – obr. 4). Venkovní žaluzie lze montovat i do předem připravených stavebních překladů (Heluz, Rono).
Předokenní instalace venkovních žaluzií
Venkovní žaluzii můžete instalovat i před okenní otvor. Tento způsob montáže je vhodný i pro dodatečnou montáž. V případě, že se rozhodnete pro předokenní montáž, máte na výběr opět několik možností. Nejběžnější je využití krycího plechu (obr. 5), který překrývá horní část žaluzie a současně schová nábal stažené žaluzie. Při tomto způsobu instalace musíte brát v potaz, že vám horní krycí plech částečně ubere světlou výšku okna (výška krycího plechu je závislá na celkové výšce žaluzie).
Dalším způsobem předokenní montáže je použití roletového boxu. Na výběr máte více tvarů roletových boxů (obr. 6, 7). Venkovní žaluzie v roletovém boxu je vhodná pro typy žaluzií typ F-80, C-80, C-80 CC nebo Z-70. Předokenní instalace je vhodná i pro venkovní žaluzie v samonosném provedení (obr. 8).
