Efektivní recyklace suti v praxi: dům v Rotterdamu z cihel ze stavebního odpadu
V Rotterdamu v Nizozemí se nachází rodinný dům, který byl kompletně vybudován z cihel zhotovených z odpadního materiálu. Projekt nazvaný “De Gouverneur“ byl díky karamelově zbarvené fasádě perfektně integrován do kontextu místního prostředí, hustě zastavěné městské části. Ačkoli jde o novostavbu, svým architektonickým zpracováním odkazuje na předválečnou i poválečnou nizozemskou architekturu.
Hlína patří mezi nejstarší stavební materiály na světě. Cihly, které jsou z ní modelovány, ať už jsou na slunci sušené či moderním způsobem pálené, jsou tady s námi již více než deset tisíc let. Možná i proto si tento tradiční a staviteli vysoce žádaný konstrukční prvek zvolili pro stavbu svého sídla i architekti nizozemského studia Architectuur MAKEN, jen s tím rozdílem, že trvali na tom, aby pro jeho výrobu byly použity recyklované zdroje. Spojili se proto se specialisty a vznikl projekt, na jehož realizaci padlo přes patnáct tun odpadu. „Cihla je jedním z nejpoužívanějších a nejoblíbenějších fasádních materiálů v Nizozemsku,“ řekli Nina Aalbers a Ferry in 't Veld z autorského ateliéru a dodali: „Existuje spousta nizozemských architektů, kteří přemýšlejí o nových udržitelných způsobech výstavby.“
Česká společnost ERC-TEC, která vyvinula revoluční recyklovaný beton, se spojila s firmou Skanska. Společně přináší na trh řešení, které umožní znovu využít odpad pocházející ze…
Český příspěvek cirkulární ekonomice: vynález recyklovaného betonu
Účelná upcyklace
Cihlová fasáda objektu, který se stal v roce 2016 domovem dvou členů zmíněné architektonické kanceláře, výborně zapadla do dané městské oblasti, pro níž jsou cihlové stavby typické. Výrobci cihel, tehdejšímu holandskému start-upu (dnes už jde o zavedenou firmu), se podařilo ve spolupráci s autory návrhu vytvořit designový produkt a dokázat tak, že při využití odpadního materiálu nevzniká automaticky neestetický objekt.
Výrobce takzvaně upcykloval celkem patnáct tun odpadního materiálu (sebraného v okruhu do 160 kilometrů od továrny situované na jihovýchodě Nizozemska), od keramiky přes sklo a izolační materiály až po hlínu, s výsledkem v podobě sady cihel v karamelovém odstínu. Přesné složení není z důvodu uchování know-how veřejné. V každém případě je však potřeba zmínit, že se výrobce vyhýbá jakýmkoli kontaminovaným materiálům. Do směsi, z níž jsou cihly vyráběny, nepřidává například popílek, který může obsahovat těžké kovy, nepoužívá ani odpad obsahující cement, jenž ze své podstaty nevhodně reaguje s jinými materiály.
Téma: rodinné domy a vily
Podpora zástavby nevyužitých městských proluk
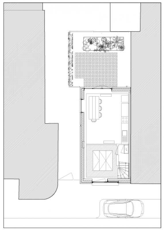
Místní samospráva Rotterdamu podporuje malé stavebníky, kteří usilují o zástavbu nevyužitých proluk ve městě, a to včetně jeho historických částí. Architekti proto sjezdili město křížem krážem a a našli místo v hustě zastavěné části města, v poměrně těsné mezeře mezi stávajícími domy, kterou se rozhodli vyplnit úzkou čtyřpatrovou novostavbou, z níž se později stal jejich domov, jenž nebyl ochuzen ani o malý „dvorek“. Úředníci jim vyšli vstříc a obdrželi povolení.
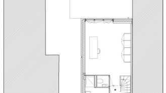
Bylo zapotřebí ponechat mezi novým objektem a jedním ze sousedních domů také průchod. Výsledná stavba je proto jen 4,65 metrů široká, 8,8 metrů hluboká a disponuje čtyřmi poschodími. Každé z nich pojímá jednu větší místnost (odspoda nahoru jsou to: kuchyně s jídelnou, kancelář a koupelna, obývací pokoj a úplně nahoře se nachází ložnice a střešní terasa). Celková užitná plocha činí 120 metrů čtverečních. Schodiště je situováno tak, aby poskytovalo maximální prostorovou flexibilitu.
Strategická demolice namísto konvenčních bouracích prací
Oběhové hospodářství, do kterého opětovné využití materiálů spadá, je oborem, jenž usiluje o snižování množství odpadu umisťovaného na skládkách i poptávku po nových materiálech. Stavební odpad přitom dle statistik představuje až třetinu z celkového odpadu v Evropské unii. Jedním z nástrojů usnadnění rozvoje cirkulární ekonomiky, který je v Nizozemsku velmi diskutován, je kupříkladu zavedení „pasu stavebních materiálů“. Mělo by v něm být jasně specifikováno, jaké materiály jsou v předmětné budově použity, a to tak, aby bylo možné po budoucí demolici objektu jednotlivé suroviny snáz identifikovat. Společnosti zabývající se demolicí by tak měly téměř jistě zaručen odkup suti, jejíž zpracování by se stalo pro její zpracovatele výrazně jednodušší a časem také levnější. Pro zajímavost dodejme, že v České republice je téměř 98 % stavebního a demoličního odpadu povětšinou dále využito.
Dům jako koláž recyklovaných materiálů
Textem, který dnes přinášíme, zahajujeme minisérii článků, jež pojednávají o použití recyklovaných produktů ve stavebnictví a architektuře. Představujeme dům, který je směsicí…
Fotogalerie
Přečtěte si také
- Černý dům, jenž souzní s lesem
- Řadový dům v Brně: První český energeticky plusový dům po letech provozu
- Velkoformátová výstavba má budoucnost i svépomocí. Důkazem je dům v Žabčicích
- Atypický dům s panoramatickými výhledy zdůrazňuje výhody terasových staveb
- Moderní novostavba ve svahu jako vícegenerační rodinné sídlo
- Princip a výhody domů chráněných zemí
